Vivienda reforma interior

PROYECTO:

Reforma interior

PROMOTORA:

Privado

UBICACIÓN:

Tomares (Sevilla)

AÑO:

2023

REFORMA INTERIOR

Trabajo de interiorismo y reforma interior de vivienda unifamiliar.
En este trabajo el cliente priorizaba los espacios abiertos y acristalados, potenciando la luminosidad y calidez combinado materiales sintéticos de color blanco con la madera.
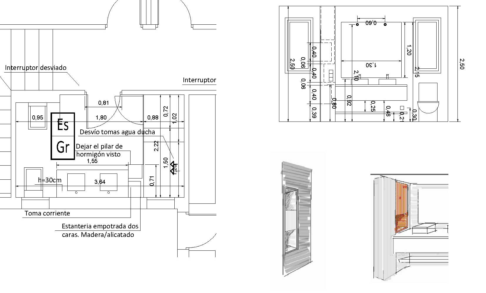
El cuarto de baño principal, se resuelve mediante alicatados en blanco y gris marengo, la ducha se separa del baño mediante una mampara de cristal, lo que da profundidad al baño. En el tabique separador entre los lavabos y la ducha se integran hornacinas para el acomodo de los elementos de aseo personal sin la necesidad de incorporar mayor número de mobiliario.
En el dormitorio principal, las paredes se han sustituido por mamparas acristaladas integrando en único volumen dormitorio y baño. Y se ha integrado un control de lunminosidad pgr para generar diferentes ambientes.
En planta baja la mayor intervención ha sido integrar la cocina en el salón incorporando parte del pasillo de entrada, de esta manera se ha incrementado la superficie vividera del salón. Una estantería acompañada de una encimera blanca que hace de barra sirve de nexo de unión entre la cocina y el salón.

Otros proyectos

CASA COLIOS

Vivienda ampliada por remonte sobre el taller de trabajo