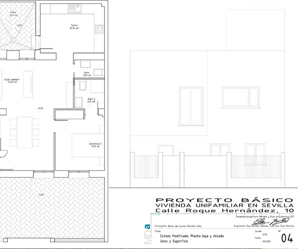
Vivienda unifamiliar
Particular
Sevilla
2019
Ampliación por remonte de edificio de una planta y su transformación en vivienda unifamiliar.
Casa Avante Toda
La Colada, Pino Montano Adecuación de local
Adecuación de nave