AMPLIACIÓN ENTRE MEDIANERAS
Ampliación de edificio entre medianeras
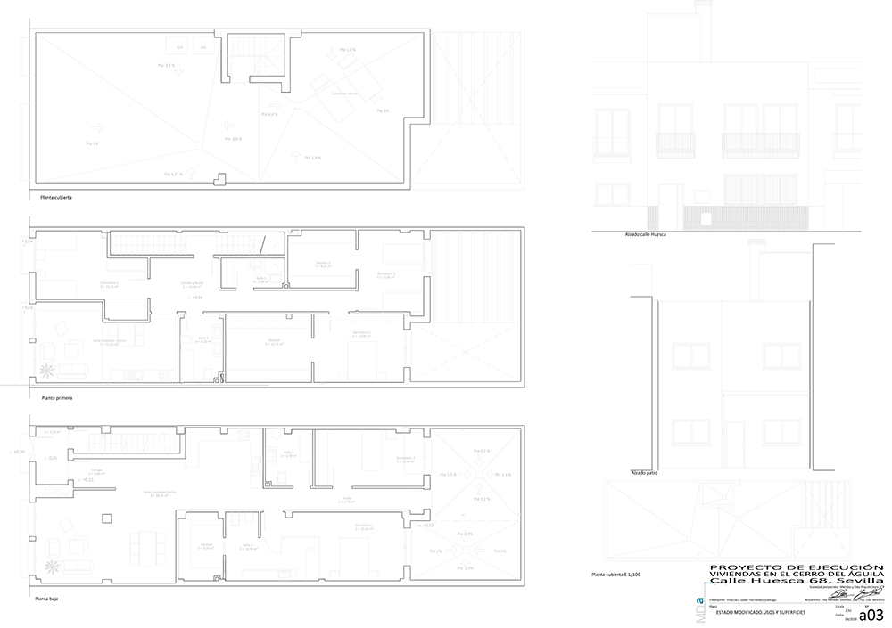
2 Viviendas en el Cerro del Águila
Privado
Sevilla
2019
Edificio ubicado en el barrio del Cerro del Águila, de una sola altura donde se pretende la ampliación por remonte y su adaptación a dos viviendas, una por planta.
La dificultad se encontraba en dar uniformidad estructural a una malgama de ampliaciones estructurales independientes, donde se encontraban cimentaciones tradicionales bajo muro, con zapatas arriostradas, pórticos de hormigón, pilares de ladrillo, forjados de hormigón in situ y forjados metálicos, refuerzos, metálicos puntuales, vigas de hormigón fisuradas por cortante, etc…
Ampliación de edificio entre medianeras
2 Viviendas en el Cerro del Águila
Vivienda en Valencina