Aduana de Algeciras
Reforma y rehabilitación
Rehabilitación
Agencia Estatal de Administraciones Tributarias (AEAT)
Ceuta
2023
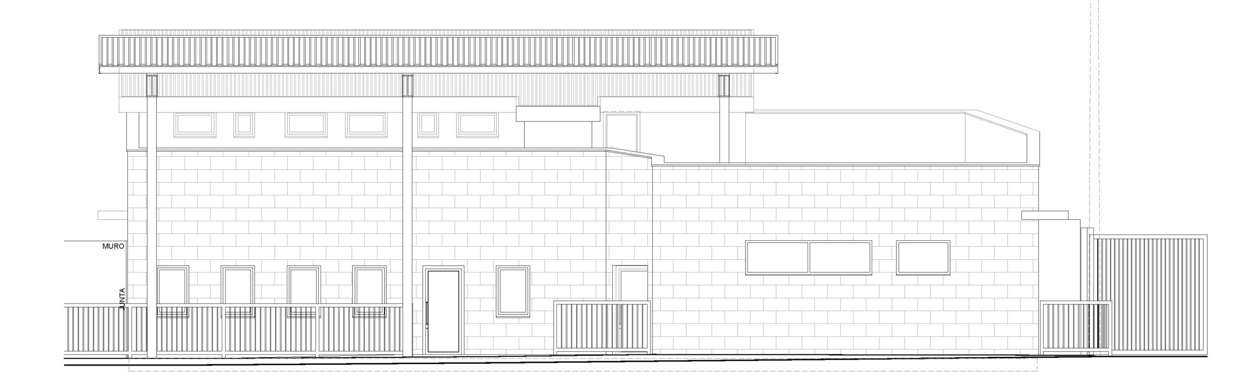
El recinto del Puesto Fronterizo de El Tarajal se localiza en la Carretera Ceuta a Tetuán, emplazado en la frontera terrestre con Marruecos, entre el litoral de la playa El Tarajal y el Colegio Público Príncipe Felipe.
Se trata de dos edificios uno administrativo destinado al control de personas y otro destinado al control de mercancías. Además de cumplir un exhaustivo programa funcional y de seguridad, la fuerte exposición climática, serán las condicionantes para el diseño de los edificios.
La fachada de sendos edificios se resuelve mediante un aplacado de gres-piedra que además de proteger de la acción climática y facilitar el mantenimiento, dotan a los edificios de un aspecto institucional y protegido.
El edificio destinado al control de mercancías se desarrolla en una sola planta, mediante la unión de tres cubos que recogen los diferentes usos incluido un muelle de descarga para camiones, el retranqueo de la pieza central facilita la ubicación de la entrada principal, protegida por voladizos.
El edificio administrativo y de control de personas, se desarrolla en dos plantas, por debajo de las actuales marquesinas en dialogo directo con la frontera peatonal. Su altura, forma y sección quedan por tanto condicionados a las marquesinas actuales y a los itinerarios de control de paso necesarios.
Reforma y rehabilitación
Reforma y rehabilitación
Rehabilitación y Reformas